|
Главная /
Строительство и Ремонт /
Баня 6х6
тема закрыта |
|
|
|
|---|
| следующая тема | предыдущая тема | ||
|
||||||||||||
| ||||||||||||
| ||||||||||||
|
планирую там жить, холла как такового нет сразу комната, почему не в помывочной, вход с\у сразу при входе делать- неособо удобно. Говорите год иль два стоять сохнуть, лес-зимний, тоже такие сроки понадобятся? На счёт печи ещё неособо определился, но хочу покупную и чтоб стекло инфрокрасное было, т.к. топить из комнаты, но думаю нужно длительного горения, ещё хотелось бы сделать от печи отопление к батаеям, пока так думаю, может что подскажете..
| |||
|
На сегодня 93000 руб. (89120270307)
| |||
|
цитата: Почему это неудобно? Нормально. А вот гости если у вас в помывочной - в туалет как пойдете? цитата: Год минимум. Бревна вообще, лет 5 сохнут, в первый год просто процентов на 70-80. То есть года через три, четыре - можно будет герметиком швы промазать специальным, а до этого время от времени конопатить. Пакля и мох - идеально. цитата: летом это может быть некомфортным. И вообще, выбор печи, если подходить требовательно к кондициям пара, достаточно ответственная вещь. Печи "топи и мойся" предназначены для топить и мыться. Париться в 90% случаев нормально не получится. цитата: судя по вашим словам, то, что вы хотите и то, что можно реально сделать - это две большие разницы. Форум русбани поизучайте, форумхаус и все такое. С годик, как минимум. А уж потом принимайтесь за строительство. Иначе средства потратите на всякие переделки потом значительные. Если бы я решил такую баньку строить, я бы сделал суперутепленный каркасник с теплым полом. Печь - аквасмарт с пеллетроном, либо электрическая печка Маслова. Или на крайний случай, дровами топить кирпичную печку своей конструкции, на русбанях выкладывал. В общем то и собираюсь строить, правда пристроем это будет к дому. | |||
|
Занятой! спасибо за советы, на счет печи чтоб весь дом отапливала, это я наверна психанул))) рассматриваю варианты такие, можно поддерживать температуру зимой для одной комнаты и электрическим способом, второй этаж на зиму изолировать. Вот ещё такой вопрос!? я думаю поставить водонагреватель в с\у над унитазом примерна, чтобы в раковинах и в душе была горячая вода, бак конечно же будет на печке в бане, а водонагревателем постоянно пользоваться думаю будет накладно...вот вопрос? возможно ли сделать так, чтобы в летнее время не пользоваться водонагревателем,а при топке бани бежала горячая вода из душа и крана, чтоб с тазиками не бегать.
| |||
|
еще такой момент, в будущем обогрев дома будет газовым, если дом надумаю строить
| |||
|
| |||
|
Удобная штука для городского огорода. А если еще несколько поставить, можно баннвй бизнес открывать. Помещение как раз, и баня и отдых, а сверху кровати, бильярд и т д.
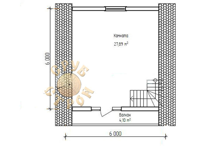
Думаю надо тут не 6 на 6, а хотя бы 7 на 6. Место останется для туалета, плиты, раздевалки. автору: Вопрос: насколько такие дома устойчивы к гниению? По аналогии с баней 6 на 3 - была такая, в предбаннике вечно сыро, все гниёт, пол потолок гниет от конденсата, зимой дверь примерзает... | |||
| следующая тема | предыдущая тема |
| похожие темы | |
|---|---|
| Аквапечь и другие печи для бани. | |
| Посоветуйте, проектируем баню | |
| пароизоляционная пленка в бане | |
| Собираюсь строить баню. Нужен консультант | |
| Пароизоляция бани, есть вопросы | |
| пол в бане на винтовых сваях | |
| нужен совет по утеплению бани. | |
| Главная / Строительство и Ремонт / Баня 6х6 | форумы izhevsk.ru |
|
© ООО "Марк" 2020
Интернет-провайдер КК МАРК-ИТТ |
|---|
