izhevsk.ru Главная /  Строительство и Ремонт /  не могу определится с конфигурацией крыши пристроя, помогите пожалуйста!
тема закрыта

Имя:
Пароль:
 зарегистрироваться | Войти через
напоминатель пароля
не могу определится с конфигурацией крыши пристроя, помогите пожалуйста!
НОВАЯ ТЕМА правила | поиск | картинки | | | о форуме |
  Новости | Авто | Недвижимость | Работа | Бизнес | Стройка | Объявления | Совместная покупка | | |
  следующая тема | предыдущая тема
Автор Тема:   не могу определится с конфигурацией крыши пристроя, помогите пожалуйста!   версия для печати
занятой
Рейтинг: 1808/-951
-- написано 3-9-2013 18:38 занятой

что то совсем голову сломал
click for enlarge 644 X 761  97.6 Kb picture
click for enlarge 871 X 773  76.3 Kb picture
click for enlarge 938 X 672 110.4 Kb picture
Показать текст сообщения полностью
занятой
Рейтинг: 1808/-951
-- написано 3-9-2013 18:49 занятой

может кто посоветует, какую крышу сделать.
Изначально планировал плоскую с конька до правой стены (нижняя картинка), да что то сложно получается, несущие балки нужны (ширина пристроя 8 метров, на средней картинке видно, от дома враво - метров на 5 отходит, нижняя картинка). То есть в принципе можно разместить балку на существующую стену дома, стропила будут чуть меньше 6 метров, прогиб от снеговой нагрузки компенсируется только если их делать через 500 мм, 100*250. Причем запаса прочности нет http://vladirom.narod.ru/stoves/beamcalc.html . Или еще балку устраивать опорную с соответствующими подпорками/столбами.

Либо сделать двускатную крышу с несущей балкой, если смотреть по средней картинке - балка пойдет вертикально, по середине пристроя. Опора получится на дом и стену пристроя, фундамент там как раз будет очень основательный. Но тут уже получается без ендовы не обойтись, а они мне шибко не нравятся, да и скат на вход получается....

Фундамент просто не цельный, поэтому что то пока затрудняюсь на чем остановится. Может есть еще варианты? Что то пока в голову не приходят.

занятой
Рейтинг: 1808/-951
-- написано 3-9-2013 18:58 занятой

или вариант односкатки - делать подстропильные балки и устраивать ферменные конструкции. Просто еще хочется устроить лестницу на чердак... Хотя вроде не шибко помешают
DA
Рейтинг: 188/-21
-- написано 3-9-2013 22:03 DA

дом построен уже? фундамент есть? есть планировки второго этажа? обязательно полноценный второй этаж или может достаточно мансардного?
занятой
Рейтинг: 1808/-951
-- написано 3-9-2013 22:24 занятой

фундамент еще не заложен, но ничего другого уже не получится сделать, и так долго голову ломал, как все лестницы вкарячить
ну и второй этаж тоже нужен, этакий зимний сад будет, да пара спален. С мансардными прибамбасами в пристрое - скорее всего совсем голову сломать можно будет.
две спальни, на первой картинке видно их, на переднем плане - это направление на север.

Каркасник суперутепленный это будет, с северной стороны может и 40 см стена будет толщиной. С такими выкрутасами придется все делать по технологии платформа. Возможно все по ходу и пойдет, да вот дерево надо заказывать, вот и хочется конструктив хотя бы вчерне накидать.
Вот планировка 2 этажа пристроя:
click for enlarge 672 X 638 103.6 Kb picture

история редактирования

занятой
Рейтинг: 1808/-951
-- написано 3-9-2013 22:25 занятой

то, что под крышей - уже существует, живем мы тут, вот пристрой надо стало
Первый этаж дома существующего - заглублен. примерно на 75 см перепад полов будет у первых этажей.
занятой
Рейтинг: 1808/-951
-- написано 3-9-2013 22:35 занятой

это я так баню захотел к дому пристроить и понеслось... Еще и погреб надо, его уже сделали практически.
Ну и как говорится, если уж начал, надо сделать так, чтобы не возвращаться уже
DA
Рейтинг: 188/-21
-- написано 3-9-2013 23:06 DA

не с того начинаете... не с крыши надо проектированием заниматься.. а с планировок.... ну не может быть при такой архитектуре нормальных удобных планов. не верю! порисуйте сперва что хотите и как хотите... подвигайте планы. нет фундамента- нет проблем! повремените с фундаментом. нарисуйте планы.
занятой
Рейтинг: 1808/-951
-- написано 4-9-2013 00:16 занятой

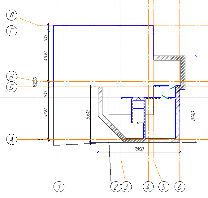
в том то и дело, что при стесненных обстоятельствах только это и выходит. Участок - 3.5 сотки , баню пристроить надо, погреб тоже нужен, лестницы опять же нужно куда то воткнуть, да и пара спален нисколько не помешает, трое сыновей растут. На плане - этакий угол кривой - это край гаража, построенного прошлыми владельцами, сносить его не вариант пока что, прямоугольник внутри пристроя - это существующий сейчас пристрой, холодный, построенный для очень малорослых людей , зигзаг стены справа - обход существующей бани, которую еще и пользовать буду, пока новую не сделаю... По планировкам - все уже продумано, никак не отступить. Вот и думаю, как это крышей покрыть
Андрес
Рейтинг: 314/-28
-- написано 4-9-2013 07:59 Андрес

Плоская эксплуатируемая кровля? И дополнительная сотка к площади участка
DA
Рейтинг: 188/-21
-- написано 4-9-2013 08:11 DA

quote:
Originally posted by Андрес:
Плоская эксплуатируемая кровля? И дополнительная сотка к площади участка

кстати да. хороший вариант при такой не стандартной планировке стен. Кровля всяко будет убогой. А тут вполне интересно будет.
плюсую!

занятой
Рейтинг: 1808/-951
-- написано 4-9-2013 08:55 занятой

quote:
Originally posted by Андрес:

Плоская эксплуатируемая кровля? И дополнительная сотка к площади участка



не сторонник я экспериментов
уклон будет градусов 12-14.
quote:
Originally posted by DA:

Кровля всяко будет убогой.



да ладно, чтож так сразу

вертолета нету, так что плоская крыша не для меня

Андрес
Рейтинг: 314/-28
-- написано 4-9-2013 13:02 Андрес

quote:
вертолета нету

А причем здесь вертолет? Лужайка, шезлонг и т.п. Можно тупо кустарником ягодным засадить
(Вспоминаю свои мучения с крышей со сложной конфигурацией стен и скатов)

занятой
Рейтинг: 1808/-951
-- написано 4-9-2013 19:30 занятой

просто горизонталь делается? Или небольшой уклон? Этак у меня третий этаж получится
Андрес
Рейтинг: 314/-28
-- написано 4-9-2013 21:41 Андрес

Уклон в единицы градусов. Да, на 3-й этаж и намекаю, особенно при такой ограниченности земельного участка
занятой
Рейтинг: 1808/-951
-- написано 4-9-2013 22:57 занятой

тогда уж уклон не во двор сделать, где этот пристрой будет стоять, а в другую сторону, будет крыша как у Ильи... Не знай, потяну ли. Жена хочет что то типа зимнего сада, ну просто помещение с чуть бОльшими окнами вот и сделать на чердаке. Мда, парусность будет уже не детская

200x150 320x240 400x300 800x600    без переносов   
быстрый ответ   

подпись
следующая тема | предыдущая тема

похожие темы
 Помогите определить цветок Цветы
 Помогите определиться с выбором блоков! 
 Как пристроить балкон на 1 этаже? кто что знает напишите пожалуйста 
 вредность изолона помогите пожалуйста 
 умоляю, помогите пожалуйста пристроить в хорошие руки щеночков Звери. Объявления
 помогите определиться из чего построить. 
 Входные двери с улицы в дом помогите определиться 

Главная /  Строительство и Ремонт /  не могу определится с конфигурацией крыши пристроя, помогите пожалуйста! форумы izhevsk.ru

 
 
 
 
 
© ООО "Марк" 2020
 
Интернет-провайдер КК МАРК-ИТТ