вырыты!) Вопросы были и до, однако, с наступлением сего неоднозначного
момента, они приобрели особую остроту.
Итак, вводные:
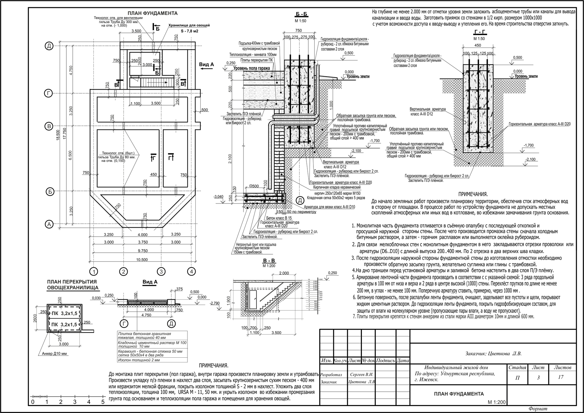
Это как в проекте.
Какабыч"а срецва жмут, посему начинаем зверстки економить.
* Первый пункт економии: уменьшение ширины с 0.75 до 0.65, а в не особо
значащих местах (навроде гаража, ажно и до 0,4)
* Пункт второй: Ослабление арматуры по всему периметру (то есть вообще по
всему) с трех рядов до двух.
* Третий пункт економии заключается в возведении опалубки: Тута
предполагаемый подрядчик предлагает рыть траншею ширше (до метра!), а затем
заливать кусками. Я думаю над вариантом - рыть толстые места траншеи по
размеру, выставлять опалубку только над выступающими частями, ну и между
бетоном и грунтом в процессе заливки устраивать полиэтиленовую пленку.
А узкие места, в любом случае, будут отыты ширше, чем надо, и там все равно
придется делать опалубку на всю высоту.
Тутведь так и эдак кусками, но в первом варианте - передвижная опалубка НА
ВСЮ ВЫСОТУ, а во втором - всего лишь над грунтом.
Ну и чтобы примерно прикинуть нагрузку: дом двухэтажный, ширина стен в два
кирпича, этаж высотой в три метра, перекрытия все бетонные.
Чего бы я хотел получить:
- Обоснованное мнение от тех. кому аргументированно есть чего сообщить. !
Желательно по каждому пункту!
- Осознавая бестолковость всего вышеизложенного, просто развития этой темы.
Заранее благодарю всех, кто отзовется.
