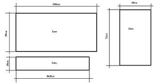
Нужно распилить из вашего ЛДСП (не темнее цвета Вишня) детали указанные на рисунке.
Также на краях у всех деталей сделать кромление.
Как цена, ну или где будет дешевле?
Показать текст сообщения полностью
Также на краях у всех деталей сделать кромление.
Как цена, ну или где будет дешевле?
