Изготовление домокомплектов по размерам заказчика от 5000р м2
Разработка проектов
Монтаж фундамента, коробки, кровли под ключ, фасад, окна двери от 10000р м2
www.delta-dom.com
тел. 8-912-856-27-01
|
Главная /
Строительные услуги - предложение /
Строительство домов из SIP СИП панелей
тема закрыта |
|
|
|
|---|
|
следующая тема | предыдущая тема | ||||
|
||||||||||||
| ||||||||||||
| ||||||||||||
| ||||||||||||
|
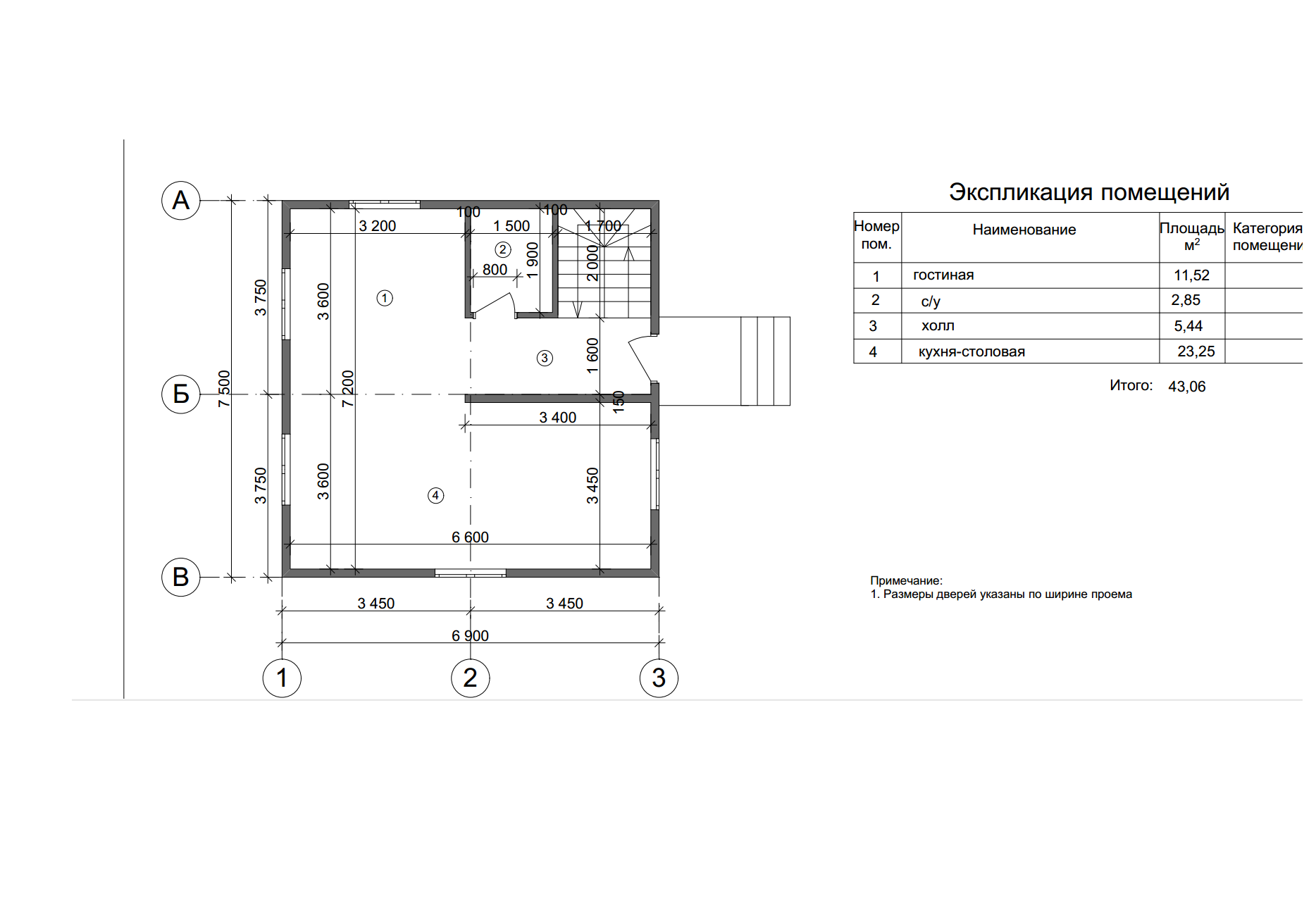
Интересует цена дома 6х7 двухэтажный (фундамент сделан ленточный)
| |||
|
| |||
|
1. Вентиляция домов из СИП панелей
Система вентиляции домов из СИП панелей проектируется вместе с Вашим будущим домом, она изначально спланирована, чтобы обеспечивать комфортный микроклимат, сохранять постоянный приток кислорода, предотвращать появление сырости. Одним из главных преимуществ загородного дома является свежий воздух, качественная вентиляция позволяет насладиться им в полной мере. Система вентиляции помогает сохранять тепло зимой и прохладу летом, препятствует появлению конденсата и выводит углекислый газ. Наша система вентиляции из пластиковых труб встроена в стеновые панели - вентиляционные короба не занимают полезную площадь в доме. Вентиляция собирается при строительстве дома, позволяя сократить время и расходы на монтаж. С системой вентиляции Вы получаете дом, готовый для комфортной жизни | |||
|
| |||
|
Варианты отделки домов из СИП-панелей
Внешняя отделка домов из СИП-панелей: Классический сайдинг; Фасадные панели типа Альта-Профиль- типа цокольного сайдинг (пластик); Фасадная плитка типа Каньон; Легкие панели вентилируемые с утеплителем; Штукатурка (простая, двухслойная или типа фахтверка). Варианты кровли домов из СИП-панелей | |||
|
2. Отопление
Электрическое отопление На чем действительно можно сэкономить в доме из СИП панелей, так это на устройстве системы отопления. Многие дома из СИП панелей отапливаются обычными бытовыми электрообогревателями (конвекторы, инфракрасные обогреватели, электрический теплый пол и др.) которые монтируются под окнами и отлично вписываются в любой интерьер. Расходы на электроэнергию зимой в доме из СИП панелей не превышают расходы на газ в обычном доме с автономной системой газоснабжения. Чтобы обеспечить горячей водой семью из 4-5 человек можно установить в систему водоснабжения один из бытовых электроводонагревателей накопительного типа объемом 100 литров. Автономные котельные | |||
|
3. Водоснабжение и канализация
Нет центрального водопровода - делаем свой. Часто заказчик пренебрегает начальным этапом работ - созданием проекта <водоснабжение и канализация>, - полностью полагаясь на рабочих, но потом обнаруживает, что не все пожелания выполнены правильно. Водоснабжение и разводка воды по дому, как правило, делается одновременно с устройством канализации. Нужно уделить особое внимание на полное предварительное согласование по всем элементам системы и качественное выполнение работ в соответствии с проектом. Водоснабжение загородного дома представляет собой систему, состоящую из следующих элементов: 1. Сооружение для водозабора: колодец или скважина 2. Насосное оборудование для подъема воды: насос или насосная станция 3. Система наружного водопровода для подвода воды: от водозабора до дома 4. Расширительный или мембранный бак для поддержания постоянного давления и предотвращения гидроударов в системе 5. Оборудование для очистки и водоподготовки 6. Автоматическое регулировочное электрооборудования 7. Система внутреннего водопровода холодной и горячей воды. | |||
|
Электропроводка.
Электропроводка в домах из SIP панелей может быть как скрытой так и открытого типа: Один из вариантов скрытой проводки на стенах из СИП панелей: кабель-каналы под электропроводку закладывают в штробы в гипсокартоне толщиной 12,5 мм, затем шпаклюют или закрывают вторым слоем гипсокартона. Открытая проводка гораздо удобнее и практичнее. При покупке второго холодильника или компьютера Вам не придется привязываться к какой-нибудь розетке или заново штробить стену. При открытой проводке новая электророзетка устанавливается за полчаса в любом удобном Вам месте. | |||
|
| |||
|
| |||
|
Дом будет возводиться на винтовых сваях диаметром 108мм высотой 2,5м. Обвязочный брус 200х200 толщина сип панелей пола и стен 174мм, покрытия кровли 224мм, перегородки каркасного типа обшитые гипсокартоном и утепленные минплитой
| |||
|
| |||
|
Ондувилла обладает теми же преимуществами, что и ондулин - не покрывается плесенью, не ржавеет, не шумит при дожде, устойчива к ультрафиолету, различным биологическим и химически воздействиям, не требует особого ухода в эксплуатации и не нагревается. В ее составе нет асбеста, благодаря чему она не представляет риска здоровью человека во время монтажа и дальнейшей эксплуатации. Внешне она очень похожа на обычную черепицу, но при этом не изготавливается из металла, что дает ей массу преимуществ
| |||
|
Варианты отделки домов из СИП-панелей
Внешняя отделка домов из СИП-панелей: Классический сайдинг; Фасадные панели типа Альта-Профиль- типа цокольного сайдинг (пластик); Фасадная плитка типа Каньон; Легкие панели вентилируемые с утеплителем; Штукатурка (простая, двухслойная или типа фахтверка). Варианты кровли домов из СИП-панелей | |||
|
| |||
|
| |||
|
сколько будет стоить такой дом http://izhevsk.ekosip.ru/projects/orion104.html
| |||
|
ответил в ПМ
| |||
|
| |||
|
А производство панелей где находится? Можно сказать?
| |||
|
Производство в Воткинске
| |||
|
| |||
|
| |||
|
Одно из важных преимуществ SIP-технологии - ЭКОНОМИЧНОСТЬ. Экономия начинается прежде всего за счет сокращения общего строительного цикла, так как все конструктивные элементы будущего дома изготавливаются на производстве, а на стройплощадке осуществляется сборка, монтаж коммуникаций и отделка. SIP-технология не предполагает использование дорогостоящей тяжелой строительной техники, дорогих типов фундаментов. | |||
|
| |||
|
| |||
|
| |||
|
| |||
|
| |||
|
| |||
|
| |||
|
| |||
|
| |||
|
| |||
|
| |||
|
| следующая тема | предыдущая тема |
| похожие темы | |
|---|---|
| СИП панели | |
| СТРОИТЕЛЬСТВО ДОМОВ ИЗ ПЕНОБЛОКОВ, КАРКАСНО ЩИТОВЫХ, ИЗ СИП ПАНЕЛЕЙ, ВСЕ ПОД КЛЮЧ! | |
| дома из сип-панелей | |
| Главная / Строительные услуги - предложение / Строительство домов из SIP СИП панелей | форумы izhevsk.ru |
|
© ООО "Марк" 2020
Интернет-провайдер КК МАРК-ИТТ |
|---|
