Требуется собрать деревянный каркас баня с утеплением, терраса
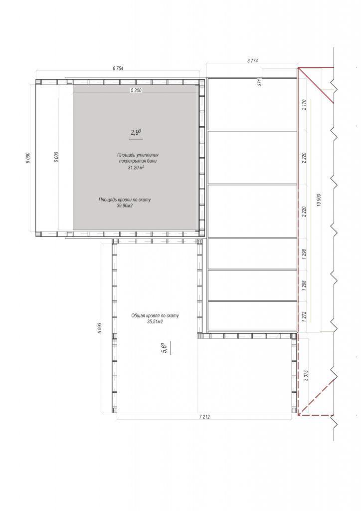
Кровля баня уклон 2,9гр
Терраса уклон 5,9гр
Показать текст сообщения полностью
Кровля баня уклон 2,9гр
Терраса уклон 5,9гр
Сборка основания(обвязка свай, настил)
Стойки с обвязкой
Перекрытие
Парапетная часть
Стропильная часть
Баня устройство утеплителя в шаг балок.
Бюджет 270000 материал на участке, сваи закручены, доски обработаны.
Николай 89508272227
