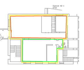
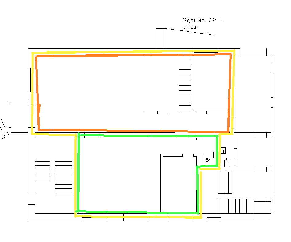
Сдается торгово-офисное помещение 150 м2 , или частями по 100 м2 и по 50 м2 в офисном центре <Кристалл>, ул. Ключевой поселок, д. 23 (перекресток Промышленная - Орджоникидзе). Под магазин, офис, кол-центр, сервисный центр, общепит и т.п.
1 этаж офисного здания, отдельная входная группа, помещение состоит из 2-х залов 70 и 45 м2, 3-х офисных помещений и санузла. Возможность подключения к интернету (4 провайдера), городские телефоны, потолок 4 м., свежий ремонт (керамогранит, <Армстронг>, пластиковые окна и трубы), пожарная сигнализация, большая парковка, удобный трафик, рядом остановки общ. транспорта, вход в помещение в любое время.
Предоставим место для наружной рекламы на фасаде, юридический адрес.
Цена 570 руб. за м2 + электричество по счетчику. Скидка на начальный период аренды.
Т. 470936




Показать текст сообщения полностью
1 этаж офисного здания, отдельная входная группа, помещение состоит из 2-х залов 70 и 45 м2, 3-х офисных помещений и санузла. Возможность подключения к интернету (4 провайдера), городские телефоны, потолок 4 м., свежий ремонт (керамогранит, <Армстронг>, пластиковые окна и трубы), пожарная сигнализация, большая парковка, удобный трафик, рядом остановки общ. транспорта, вход в помещение в любое время.
Предоставим место для наружной рекламы на фасаде, юридический адрес.
Цена 570 руб. за м2 + электричество по счетчику. Скидка на начальный период аренды.
Т. 470936
