izhevsk.ru Главная /  Офис, магазин, здание, иная коммерческая недвижимость /  арендую отдел в магазине под зоотовары

Имя:
Пароль:
 зарегистрироваться | Войти через
напоминатель пароля
арендую отдел в магазине под зоотовары
НОВАЯ ТЕМА правила | поиск | картинки | | | о форуме |
  Новости | Авто | Недвижимость | Работа | Бизнес | Стройка | Объявления | Совместная покупка | | |
  следующая тема | предыдущая тема
Автор Тема:   арендую отдел в магазине под зоотовары   версия для печати
Alex00
Рейтинг: 3/-7
-- написано 28-5-2014 14:17 Alex00

Возьму в аренду отдел в магазине под зоотовары.

Тел.: 8-904-249-75-26

история редактирования

Показать текст сообщения полностью
Alex00
Рейтинг: 3/-7
-- написано 1-6-2014 14:34 Alex00

Подниму
Uzeric
Рейтинг: 1/-4
-- написано 5-6-2014 11:49 Uzeric

Тоже отмечусь.
Leonid Zhuykov
Рейтинг: 14/0
-- написано 6-6-2014 15:46 Leonid Zhuykov

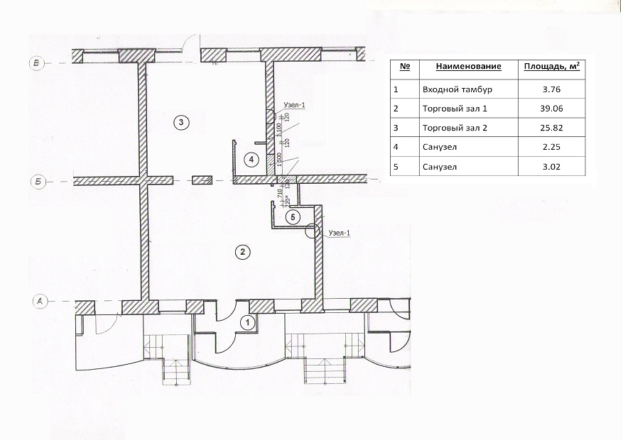
Красногеройская 37 (У 30 школы)
1я линия. Свежий ремонт, входная группа. Пожарный выход.
74кв. метра. Сдается под любой вид деятельности, кроме кафе и продовольственного магазина.
Так же есть возможность взять в аренду половину помещения (малый зал).
Цена 1000/кв.м.
24-25-28 8-952-401-77-57 Леонид Сергеевич
click for enlarge 1920 X 1440 800.6 Kb picture
click for enlarge 1920 X 1440 359.7 Kb picture
click for enlarge 1920 X 1440 365.8 Kb picture
click for enlarge 1920 X 1440 435.3 Kb picture
click for enlarge 1920 X 1440 444.6 Kb picture
click for enlarge 1920 X 1440 441.9 Kb picture
click for enlarge 1920 X 1440 360.0 Kb picture
click for enlarge 1920 X 1440 327.5 Kb picture
click for enlarge 1920 X 2560 874.4 Kb picture
click for enlarge 1920 X 2560 552.0 Kb picture
click for enlarge 1920 X 1440 727.2 Kb picture
click for enlarge 1920 X 1440 685.5 Kb picture
877 X 620 123.0 Kb Магазин. ул.Красногеройская 37. Сдам в аренду.
Uzeric
Рейтинг: 1/-4
-- написано 8-6-2014 19:55 Uzeric

лучше 30 школу взять в аренду дешевле будет
CaesarAlex
Рейтинг: 0/0
-- написано 11-6-2014 12:01 CaesarAlex

Отмечусь..

200x150 320x240 400x300 800x600    без переносов   
быстрый ответ   

подпись
следующая тема | предыдущая тема

похожие темы
 Куплю право аренды или возьму в аренду отдел в магазине под зоотовары Деловые предложения

Главная /  Офис, магазин, здание, иная коммерческая недвижимость /  арендую отдел в магазине под зоотовары форумы izhevsk.ru

 
 
 
 
 
© ООО "Марк" 2020
 
Интернет-провайдер КК МАРК-ИТТ