Аренда в ТЦ в селе Якшур-Бодья, Пушина 131.
Показать текст сообщения полностью
Ремонт просто шик! Первая линия федеральной трассы через село.
Сдаются в аренду площади под магазины любых направлений: одежда, запчасти,уборы,мебель и т.д. аптеки и точки услуг и д.р. в селе Якшур-Бодья, ул. Пушиной, д.131
ПОЖЕЛАНИЯ:
1 этаж: продукты и аптека и цветы(600р/м2)
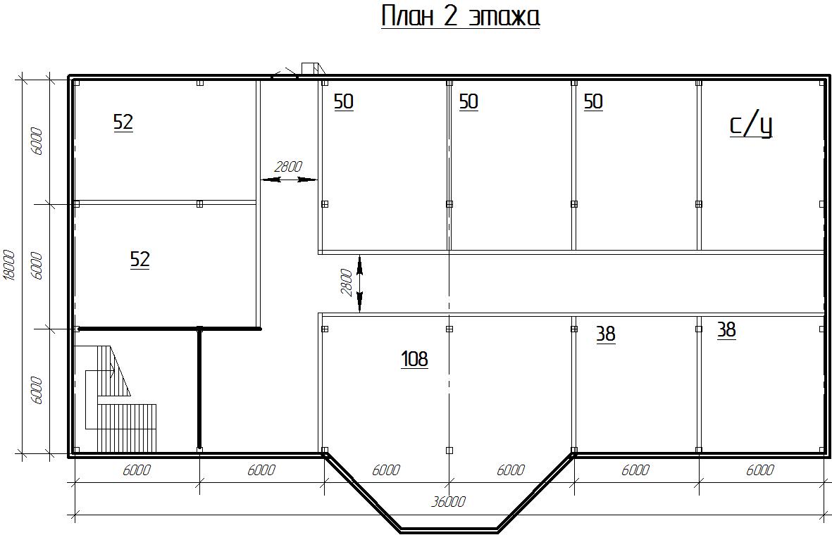
2 этаж: все что душе угодно (500р/м2 - снизу план этажа + - )
3 этаж: цельный ~700м2 c великолепной панорамой и потолком до 5.5м! ( весь этаж всего 350р/м2)
СЛЕДУЯ ИЗ 3 этажа больше аренда меньше стоимость!
