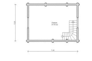
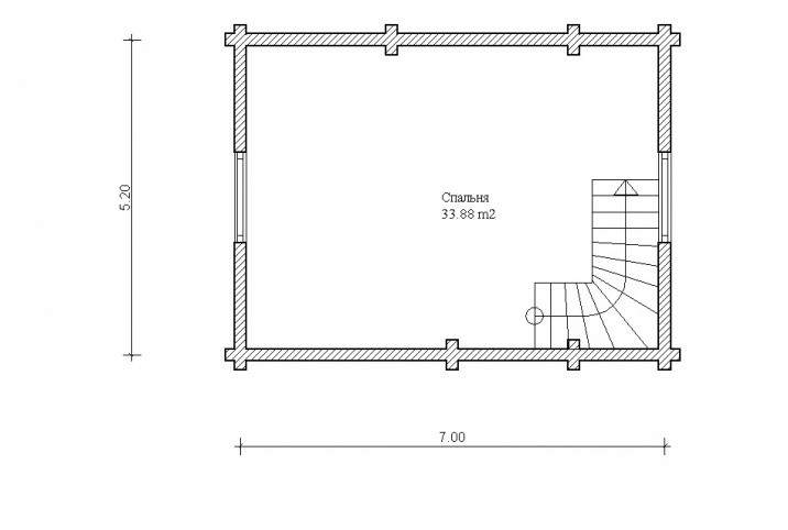
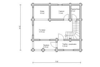
Рубленые срубы в наличии и на заказ.СОСНА!! Зимний лес! Качественная рубка! Цены с доставкой,разгрузкой!! Комплектуем пиломатериалом,вагонка,банные двери,полковая доска,банная мебель.
При заказе сруба сейчас,из ЗИМНЕГО леса! Мы доставим ваш сруб,в любое удобное для вас время.
Хранение сруба беспл. Окончательный расчет при доставке,разгрузке сруба
Оказываем услуги по сборке срубов,установке под ключ,возможна рассрочка!
89043180661
Показать текст сообщения полностью
При заказе сруба сейчас,из ЗИМНЕГО леса! Мы доставим ваш сруб,в любое удобное для вас время.
Хранение сруба беспл. Окончательный расчет при доставке,разгрузке сруба
Оказываем услуги по сборке срубов,установке под ключ,возможна рассрочка!
89043180661
